我是专业的室内设计师,专注家居装修领域!房子买什么户型好?我装修那么多的房子,大大小小,任何样式的户型基本都见过了!户型怎么样才算是好?我自己总结了下,我认为空间动静分布合理,采光充足!好的户型就是具备这两个条件!所以,判断一个户型好与不好,看这两点就可以了!买房子的话尽量往这样的户型买,就比较好!
第一,空间动静布局合理!
空间“动”指的是客厅、餐厅、厨房和公共卫生间等公共空间;“静”指的是私密空间,也就是我们的卧室啊,书房啊,衣帽间等!那么一个比较好的户型,室内空间分布基本都是入户进来就是客厅和餐厅,厨房了。有些户型的话入户进来多了一个入户花园或者玄关都是蛮不错的!过道里面进去就是私密空间啦!好的户型客厅和餐厅是分开的,这样我们在实用餐厅用餐的时候就不影响到客厅空间啦!
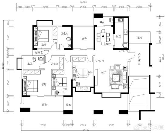
如下图的户型就是比较好的,当然了,要是餐厅和卧室都有独立的生活阳台那更完美了!

第二种户型就是南北通透!
太阳其实根据不同的季节,它运转是不一样的!但是南北通透的户型是不受到影响的,在买房子的时候尽量买南北通透的户型!

第三种比较好的户型,有入户花园最好,每个空间都有独立的生活阳台,或者大大的窗户也是比较好的!好的户型在装修的时候不需要改动太多,或者根本不需要改动!

所以,综上所述,我认为买房子尽量买南北通透、空间动静分布合理、最好有入户花园啊,室内的面积要大点的,这样的户型是最好的!
暂无评论
发表评论